Over WS51
Troeven
Nieuws
Kantoren
Contact
< Overzicht
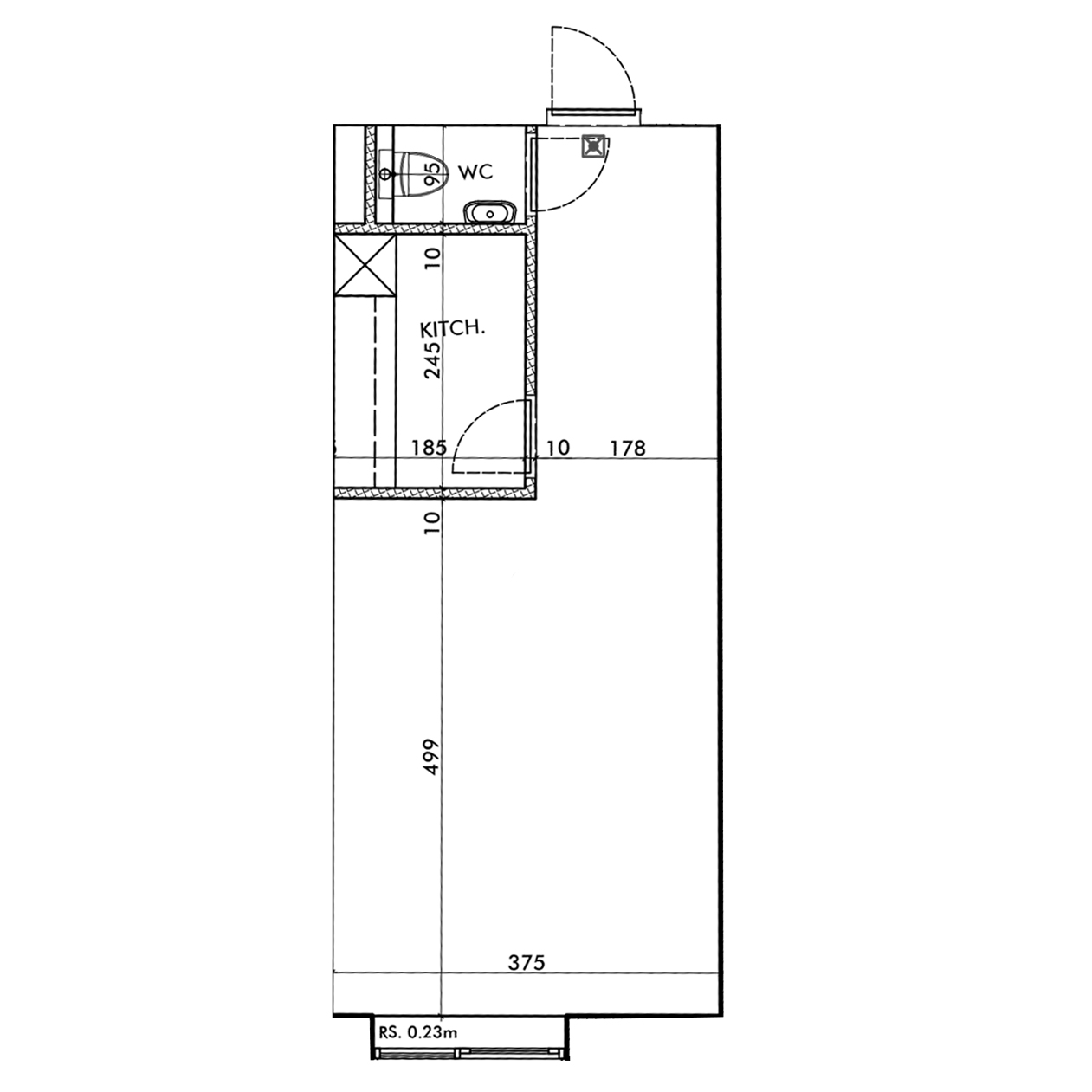
32m²
|
Prijs op aanvraag
Unit 22
Bureau met een oppervlakte van 32 m²
Individuele keuken en toilet
Ik heb interesse in dit kantoor
Interesse in Unit 22
Please leave this field blank
Ik ga akkoord met de
algemene voorwaarden
Verstuur
Deze website maakt gebruik van cookies om uw gebruikservaring te verbeteren. Door verder te surfen, stemt u in met ons cookie-beleid.
Meer info